Prodej rodinného domu v Přerově, místní část Újezdec
Popis nemovitosti
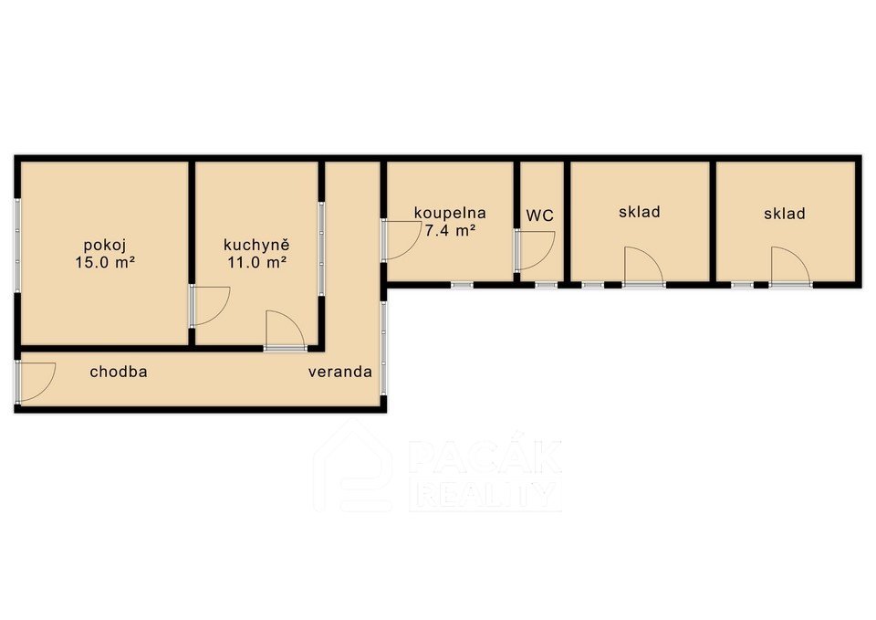
Ve výhradním zastoupení majitele nabízíme ke koupi rodinný dům v Přerově, místní část Újezdec, ulice Hlavní. Dům je dispozičně řešen jako 1+1 s kompletním sociálním zázemím s možností rozšíření. Dům je řadový vnitřní, zděný smíšený, přízemní, nepodsklepený. Za domem uzavřený dvůr s technickými místnosti a navazující zahrádka poskytující dostatek soukromí. V okolí veškerá občanská vybavenost. Klidná lokalita s výbornou dostupností do Přerova. Parkování před domem. Dům je napojen na zdroj elektrické energie, plyn, vodovod i kanalizaci. Dům je volný, bez zástav a věcných břemen, připravený k okamžitému nastěhování. Doporučujeme prohlídku tohoto menšího domu s velkým potenciálem.
Specifikace
| Plocha pozemku | 153 m² |
| Užitná plocha | 80 m² |
| Energetická náročnost budovy | G - Mimořádně nehospodárná |
| Město | Přerov |
| Ulice | Hlavní |
| Cena | Zrušeno |
| Stav | Zrušeno - jiný důvod - info v poznámce |
| Podkategorie | Rodinný |
| Kategorie | Domy |
| Typ | Prodej |
Máte zájem o nemovitost?
Kontaktujte nás
Ing. Jiří Pacák
realitní makléř
Podobné nabídky
Prodej zrekonstruovaného rodinného domu o dvou bytových jednotkách v Prostějově
Žeranovská, Prostějov - Prostějov
Prodej zrekonstruovaného rodinného domu ve Velkém Újezdu s pěknou zahradou a stodolou
Oderská, Velký Újezd - Velký Újezd
Prodej rodinného domu v Kokorách blízko Olomouce s přístavky a zahradou s ovocnými stromy
Kokory - Kokory
Prodej cihlového rodinného domu v atraktivní lokalitě v Týně nad Bečvou
Novosady, Týn nad Bečvou - Týn nad Bečvou
Recenze našich klientů
Denisa Mensikova
Recenze na Pacák Reality – skvělá zkušenost S realitní kanceláří Pacák Reality, konkrétně s paní Hartmanovou, mám výbornou zkušenost. Pomohla mi s pronájmem bytu v Olomouci a celý proces proběhl rychle, profesionálně a bez jakýchkoliv komplikací. Oceňuji maximální vstřícnost, ochotu a férový přístup. Paní Hartmanová byla vždy k dispozici, ochotně odpovídala na všechny dotazy a zajistila hladký průběh celého pronájmu. Pokud hledáte spolehlivou realitní kancelář, rozhodně doporučuji!
Kay
Měla jsem to štěstí jednat s paní Hartmanovou ohledně pronájmu bytu. Mohu jedině doporučit, jelikož se mi byla poskytnuta komplexní a kvalitní péče s výborným přístupem k zákazníkovi. Opravdu vřele doporučuji a děkuji za nadstandardní poradenství ohledně realitního trhu.
Kristýna Pořízková
Maximální spokojenost při koupi nemovitosti. O všem jsme jednali především s paní Hartmanovou, oceňuji absolutní profesionalitu, rychlost, jednání i úroveň komunikace. Mile ráda doporučuji.
Iva Kráčmarová
Máme velmi dobré zkušenosti s realitní kanceláří PACÁK REALITY s.r.o., zejména s pronájmy bytů. Zatím nám vždy sehnali v krátké době spolehlivého nájemníka a se všemi službami, které nabízí, jsme byli maximálně spokojení. Děkujeme všem za profesionální přístup a můžeme vás skutečně jen DOPORUČIT. Kráčmarovi, Olomouc
Vojtěch Adamec
Prostřednictvím realitního makléře Ing. Pěchy, RK Pacák Reality Olomouc, jsem prodával nemovitost, se službami a hlavně profesionálním jednáním makléře jsem byl velice spokojen.